Adeline Stals Dr. Architecte
Architecte, j'ai également développé des compétences sur les nouvelles technologies au travers de mon postdoctorat à UC Berkeley. Mon intérêt architectural se porte principalement sur l'habitat, individuel ou collectif, sous toutes ses formes. Rénovation, extension, reconversion, nouvelle construction et aménagement intérieur. En étroite collaboration avec chaque maître d'ouvrage, la prise en compte de vos besoins et du contexte me permettent de développer une réponse juste et sensible pour aboutir ensemble à des projets uniques qui vont au-delà de vos besoins initiaux.
Projets

Rénovation d'une maison de maître,
Liège
Ce projet a pour objectif de restaurer une maison de maître afin de redonner un éclat aux nombreux éléments d'antan qui lui donne son cachet. Au-delà des interventions de restauration nécessaires, la cliente désire retravailler la façade arrière et aménager les combles. Ceux-ci sont aménagés tel un petit appartement autonome perché et profitant de la vue sur la ville.* Développé avec le bureau d'architecture
Atérianus & Louon

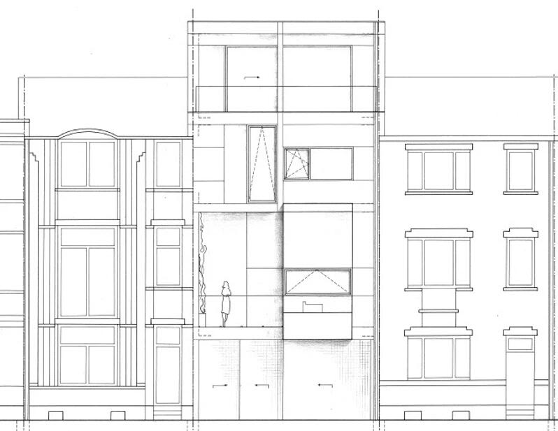
Extension d'une résidence sociale,
Grivegnée
L'objectif est d'augmenter la capacité d'accueil d'une résidence médico-sociale en la réhaussant d'un niveau. Nous avons développé une organisation fonctionnelle tout en travaillant sur une architecture épurée qui induit une nouvelle dynamique architecturale au bâtiment. Afin d'offrir une qualité de vie agréable aux résidents, un espace communautaire est également intégré au projet et la lumière inonde chaque espace. De nouvelles interactions et des liens sociaux se créent, les résidents s'approprient les lieux, la vie s'installe dans cette résidence.* Développé avec le bureau d'architecture
Atérianus & Louon

Extension de cabinets dentaires,
Grivegnée
Ce projet consiste en l'agrandissement d'un cabinet dentaire. Au-delà du respect du programme du client, une attention particulière a été portée à la fluidité des circulations. Les espaces d'attente et de circulation interagissent avec la rue et créent ainsi une dynamique pour le quartier.* Développé avec le bureau d'architecture
SIMPLE Architecture

Rénovation et extension avec piscine intérieure,
Grivegnée
Rénovation d'une maison unifamiliale de plein pied et extension pour une piscine intérieure. Dans un cadre verdoyant et sur un terrain complexe par sa déclivité, le projet favorise l'optimisation des espaces existants pour conserver un espace extérieur agréable. Le séjour et la piscine sont tournés vers le paysage tandis que le salon se veut plus cocoon et retrouve de l'intimité.
Découvrir +* Développé avec le bureau d'architecture
SIMPLE Architecture

Rénovation de deux appartements à petit budget
Centre de Liège
La réflexion de cette rénovation s’est portée sur la valorisation des spatialités tout en limitant les interventions pour restreindre le budget. Les étages du studio et du duplex ont été inversés afin qu'ils jouissent d'hauteurs sous-plafond plus adaptées.

Maison mitoyenne unifamiliale,
Quartier des Vennes à Liège
Conception d’un logement unifamilial avec garage et deux kots étudiants. Le focus est mis sur la présence d'espaces extérieurs généreux pour chaque logement, des prises de lumière et la diversité des vues.

**Immeuble de logements collectifs,
Outremeuse à Liège
**
Projet d'un immeuble mitoyen sans vis-à-vis directs. Le logement aux normes PMR est inondé de lumière grâce au recul de la façade arrière. Les ouvertures vers la faille côté sud apportent de la luminosité supplémentaire aux espaces et des vues différentes.

Reconversion de l'école du Barbou,
Outremeuse à Liège
Place d'honneur au concours EAP 2014
Le projet comprend la création d’une nouvelle aile générant un immense atrium, dans lequel s’installe un dispositif de circulation. Des espaces collectifs informels, des espaces de dégagement, de rencontre et de travail s’y greffent afin de générer une vie communautaire pour les étudiants et les professeurs.

**Aménagement intérieur d'un loft,
Quartier St Léonard à Liège
**
Les circulations sont un atout majeur du projet. Les escaliers se déploient dans un mouvement continu et animent les différents espaces. La double hauteur du salon laisse voir simultanément la profondeur du jardin et l’activité de la rue. Le second escalier mène à une passerelle créant une respiration au niveau du volume de la cuisine. L’espace parents, au dernier étage, jouit d’une vue en surplomb sur le quartier.

Contact
Adeline Stals ArchitecteAvenue de la Paix, 24030 Grivegnée, Belgique[email protected]
+32 494 13 05 79
__
La mission d'architecte
La plupart des clients n'ont qu'une vague idée des étapes qui constituent le processus d'un projet architectural depuis sa conception jusqu'à sa construction. Avant d'aller plus loin, voici quelques explications pour clarifier ma mission d'architecte.
1.
PREMIER RENDEZ-VOUS
Nous commençons par nous rencontrer pour discuter de vos objectifs, besoins et visions pour l'ensemble de votre projet. Nous abordons des questions telles que:
*De combien d'espace avez-vous besoin ? En rénovation, quelles sont les potentialités cachées de votre maison ? Vos attentes correspondent-elles à votre budget? *
Cette phase comprend également des visites sur site pour prendre des mesures et étudier les possibilités réelles de votre projet.
2.
ESQUISSE
Maintenant, le vrai plaisir commence. Cette étape consiste à dessiner votre bien, terrain ou construction existante, tel qu'il est, puis à esquisser le projet. Cette proposition montre l'implantation envisagée et l'articulation des espaces intérieurs et extérieurs. Lors de notre 2ème rencontre, vous découvrez les intentions architecturales. C’est l’occasion de discuter des adaptations que vous désirez en termes de surfaces et volumes notamment.
3.
DEVELOPPEMENT DU PROJET
Une fois que vous avez approuvé l'esquisse, la phase d’avant-projet peut commencer. Nous commençons par établir un contrat entre vous et l'architecte. A cette étape, nous demandons généralement un avis préalable au service d'urbanisme et effectuons des modifications si nécessaire. Nous nous rencontrons pour signer le contrat et vous présenter les modifications qui ont été apportées pour correspondre à vos attentes demandées à l'étape 2 et à celles de l'urbanisme.
4.
PERMIS D'URBANISME
Il est temps de finaliser le projet et d'établir les plans définitifs. Nous validons ensemble tous les détails afin de produire les documents nécessaires à la demande de permis d'urbanisme. Lorsque le dossier administratif est réalisé, nous le signons ensemble afin que vous puissiez le déposer à la commune.
Nous avons passé beaucoup de temps à concevoir un projet unique. La dernière chose que nous voulons, c'est que nos idées soient correctement transmises pour la construction. Passez à l'étape 5 - Documents de construction.
5.
DOCUMENTS DE CONSTRUCTION
A cette étape, il s'agit d'abord de constituer le cahier des charges et le métré. Des demandes de prix sont ensuite envoyées aux entrepreneurs. Nous analysons les offres et les comparons.
6.
CHANTIER
Ca y est, votre projet se concrétise! Je vous accompagne dans cette étape importante par le suivi de chantier. Je définirai la fréquence des visites de chantier en fonction de l'avancée des travaux et rédigerai des rapports relatant l'état d'avancement. Nous procéderons également à la réception provisoire et ensuite définitive des travaux.
Il est maintenant temps de passer à l'action. Tout ce dont vous avez besoin, c'est d'un accompagnement pour vous aider à mener à bien votre projet.
Quel est votre projet ? Contactez-moi dès aujourd'hui pour commencer.
Questions fréquentes
Ressources
Rénovation et extension avec piscine intérieure à Grivegnée
Projet développé par l'équipe de Simple Architecture
Parcourez le projet ici
Questions fréquentes
- Pourquoi ai-je besoin d'un architecte ?
L'architecte a une vision globale de votre projet. Il vous aide à explorer ce qui vous plaît sur le plan esthétique et ce dont vous avez besoin sur le plan fonctionnel. Il compose avec les contraintes et atouts du lieux et de vos souhaits, pour vous proposer un projet sur mesure et qui réponde à vos attentes. Il gère l’aspect administratif en prenant en considération les règlements urbanistiques. Finalement, il coordonne l’ensemble des intervenants pour assurer la bonne mise-en-oeuvre de votre projet.
- L'architecte n'ajoute-il pas un coût important à un projet ?
S'il est vrai que les honoraires des architectes constituent un coût supplémentaire pour le projet, le recours à un architecte peut en fait vous faire économiser. C’est un investissement qui vous fera gagner du temps et de l’argent à moyen terme. L'architecte veille à votre budget, vous conseille sur les matériaux et garantit la qualité du travail sur chantier. L'intervention d'un architecte peut réduire les coûts d'énergie et surtout assure un aménagement efficace qui corresponde réellement à ce dont vous avez vraiment besoin.
- Quel est mon rôle dans le processus de conception ?
Vous êtes un acteur essentiel du projet. En phase de conception, nous serons amenés à nous rencontrer pour discuter de vos préférences, vos exigences fonctionnelles, votre budget afin que vous restiez en maîtrise de votre dossier. En donnant votre avis, en posant des questions, vous enrichissez le projet et nous nous rapprochons chaque fois plus de la réussite de celui-ci.
- Que se passe-t-il lors de notre première rencontre ?
La consultation initiale vous permet de déterminer si nous sommes les mieux adaptés à votre projet. Nous discuterons de la manière dont vos besoins correspondent à nos capacités et à notre expérience. Vous pourrez partager librement vos idées et vos concepts et aurez également la possibilité de poser des questions et de demander des précisions sur notre travail.
- Pouvez-vous travailler avec des clients à distance ?
Bien entendu! Nous disposons de tous les moyens numériques et téléphoniques pour discuter et vous partager les documents que nous produisons.
- ** J'ai un projet mais je ne sais pas par où commencer. Comment pouvez-vous m'aider ?**
Lors de notre prise de contact, apportez des exemples de ce que vous aimez dans d'autres bâtiments ou aménagements. Il peut s'agir d'esquisses ou d'images d'inspiration. Nous pouvons interpréter votre liste de souhaits et concevoir un projet qui vous plaise.
- Combien de temps dure le processus de conception ?
Chaque projet a ses propres exigences et paramètres. Le délai de conception varie en fonction de ceux-ci. Je serai heureuse de discuter de vos besoins pour vous donner une estimation plus précise.
- Puis-je vous contacter en dehors des heures de bureau ?
N'hésitez pas à utiliser l’icône de chat en bas à droite de l'écran pour me laisser un message. Je vous répondrai dès que je suis disponible.
Ressources
Ressources
Quelques sites de référence sur les normes, primes, liste des corps de métier dont vous pourriez avoir besoin. Vous retrouvez aussi des sites de matériaux afin de faciliter vos recherches.
Administratif
Ordre des Architectes
Coordinateur sécurité-santé
Responsables PEB agréés
Certificateurs PEB agréésPrimes en Wallonie
Prime à L'Energie
Normes belges
Taux TVA 6% - conditions
Trouver un entrepreneurCartographie DGO4
Plan cadastral
Matériaux de construction
Briques Nelissen
Revêtement Eternit
Revêtement Rockpanel
Revêtement Trespa
Isolant Isovariant
Isolant Recticel
Produits Xella
Produits WienerbergerSanitaire
Facq
VanMarke
Villeroy&Boch
Questions fréquentes
Mon parcours
Mon travail s'articule selon trois spécificités qui se complètent. Architecte de formation, j'ai ensuite entrepris un doctorat à l'Université de Liège, poursuivi par un post-doctorat à l'Université de Californie à Berkeley (USA). Ces années dans la recherche académique ainsi que mes différents séjours à l'étranger ont renforcé mon ouverture d'esprit. Le sens du détail et la persévérance sont des valeurs que j'affectionne tout particulièrement.
Architecte
Je porte un intérêt architectural tout particulier aux environnements bâtis denses. J'ai une attention particulière pour la diversité des vues, apportant des respirations spatiales et de la lumière. N'hésitez pas à consulter davantage sur la mission d'architecte.
Outils numériques
Pour soutenir la conception architecturale, de nouveaux outils sont développés. J'ai consacré cinq années de recherche universitaire à étudier la transformation numérique en architecture et l'implémentation de nouveaux outils dans les petits bureaux.
Réalité Virtuelle
J'ai développé des compétences sur les outils de réalité virtuelle dédiés à l'architecture au travers de mes recherches postdoctorales à l'Université de Californie. La réalité virtuelle apporte une représentation complémentaire du projet aussi bien pour l'architecte que pour ses clients.
Expériences
2019 à aujourd'hui
Ambassadrice XR4ALL pour le secteur AEC
XR4ALL est un projet visant à renforcer l’industrie européenne des technologies XR et à
accélérer sa croissance.
2017 à aujourd'hui
Membre du comité de rédaction de DNArchi,
La plateforme Digital Design for Numerical Architecture publie des contributions sur la
conception architecturale numérique.
2019 à 2020
Chercheuse postdoctorante,
XR Lab, Université de Californie, Berkeley
Responsable: Luisa Caldas
2015 à 2019
Doctorante, aspirante F.R.S.-FNRS,
LNA, Université de Liège
Responsables: Sylvie Jancart et Catherine Elsen
Formation
Publications scientifiques
Travaux de rénovation
Habitation à Liège
Issue d'une famille de bricoleurs, mon adolescence a été bercée par les allées et venues de mes parents en habits poussiéreux. A la fin de mes études d'architecture, j'ai rapidement ressenti l'envie de rénover un bien pour appliquer mes connaissances d'architecte. Manuelle, ambitieuse et perfectionniste, il m'a fallu apprendre sur le terrain de nombreuses techniques que je ne maîtrisais pas encore. Les ressources pour apprendre sont vastes et à portée de main. C'est donc munies de mes outils que j'ai appris à tracer un réseau électrique, à plafonner, poncer, couper, clouer.L'aboutissement du projet passe à la fois par des accomplissements pratiques et concrets sur chantier, mais également par du temps de réflexion. La planification, la gestion des coûts sont autant de clefs à la réussite du projet. Ces éléments rationnels guident pour poser des choix pertinents.
Avant / après rénovation



















